Kerrostalo, Ramsayntie 6, Loviisa, Määrlahti, 3h, k, vh, kph, las.p, 75,50 m², 640,00 €/kk
Loviisan Määrlahdessa sijaitseva 75,50 neliön kolmio tarjoaa perheen arkeen mukavat ja toimivat puitteet. Lähellä sijaitsee ruokakauppa ja päiväkoti. Ympäristöstä löytyy puisto ja ulkoilureitit sekä hyvät pyörätiet keskustaan.
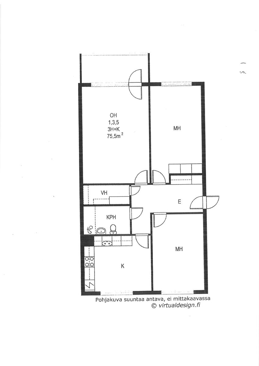
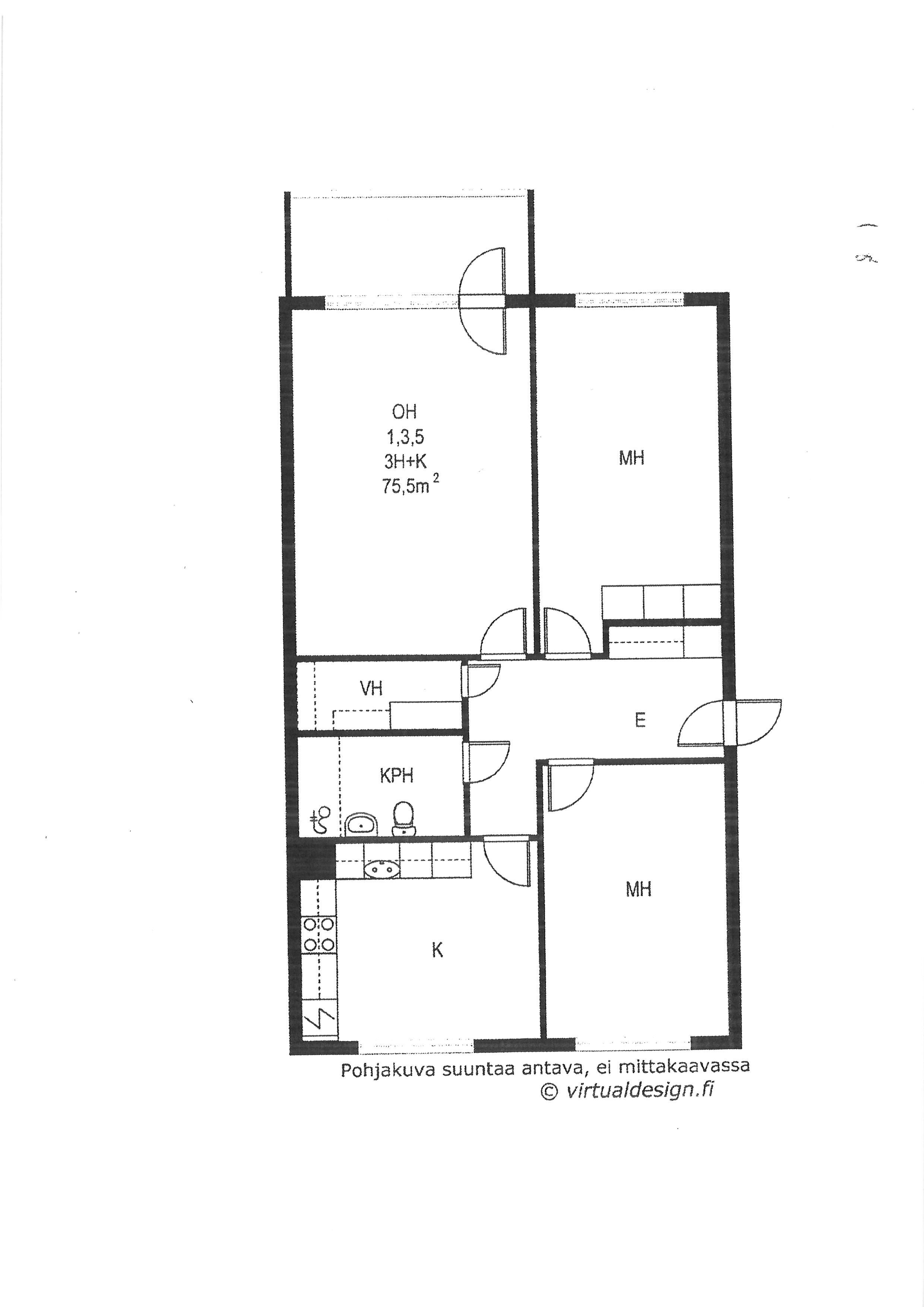
Asunnon pohjaratkaisu on hyvä, ei hukkaneliöitä. Vaatehuone helpottaa järjestyksen pitämistä, ja etelään avautuva lasitettu parveke tuo valoisuutta kotiin.
Ota yhteyttä, niin sovimme esittelyajan. 
Kohdetta välittää
LKV Leena Lindroos OyY-tunnus: 2606259-2Aleksanterinkatu 8
07900 Loviisahemma@lkvhemma.fi0400 158 919
07900 Loviisahemma@lkvhemma.fi0400 158 919
Esittely
Kohteen seuraavaa esittelyajankohtaa ei ole tiedossa
Perustiedot
64395290
64395290
Loviisa, Määrlahti
Ramsayntie 6
07940 Loviisa
Ramsayntie 6
07940 Loviisa
Kerrostalo
Ei
Vuokra
3h, k, vh, kph, las.p
3
75,50 m²
75,50 m²
Yhtiöjärjestyksen mukainen
2/3
1974
1974
Heti
Ei
Hinta ja kustannukset
640,00 € / kk
Toistaiseksi voimassa oleva
640,00 €
Rahana, tilisiirto tai Kelan antama maksusitoumus. Vakuuden määrä 1-3 kk vuokra, riippuu hakijan luottotiedoista.
Rahana, tilisiirto tai Kelan antama maksusitoumus. Vakuuden määrä 1-3 kk vuokra, riippuu hakijan luottotiedoista.
Ei
Ei
26,00 € / kk / hlö
Saunamaksu: 15 €/kk
Lisätiedot
Ei
Lasitettu
Ilmansuunta: etelä
Ilmansuunta: etelä
Ei
Ei
Tyydyttävä
Kaukolämpö
Koneellinen poisto
Antenni-TV
Asunnon tilat ja materiaalit
Pääasiallinen rakennusmateriaali: Betoni
Varusteet: jääkaappipakastin, astianpesukone, keraaminen liesi, liesituuletin
Seinien pintamateriaali: maalattu
Lattian pintamateriaali: laminaatti
Astianpesukone on vuokralaisen käytössä, mutta vuokranantaja ei vastaa sen korjauksesta, huollosta tai uusimisesta. Ei ole tietoa astianpesukoneen toiminnasta.
Liesituuletin on vuokralaisen käytössä, mutta vuokranantaja ei vastaa sen huollosta, korjauksesta tai uusimisesta. Liesituulettimen toimintakunnosta ei ole tietoa.
Seinien pintamateriaali: maalattu
Lattian pintamateriaali: laminaatti
Astianpesukone on vuokralaisen käytössä, mutta vuokranantaja ei vastaa sen korjauksesta, huollosta tai uusimisesta. Ei ole tietoa astianpesukoneen toiminnasta.
Liesituuletin on vuokralaisen käytössä, mutta vuokranantaja ei vastaa sen huollosta, korjauksesta tai uusimisesta. Liesituulettimen toimintakunnosta ei ole tietoa.
Seinien pintamateriaali: maalattu
Lattian pintamateriaali: laminaatti
Lattian pintamateriaali: laminaatti
Seinien pintamateriaali: maalattu
Lattian pintamateriaali: laminaatti
Makuuhuoneiden määrä: 2
Lattian pintamateriaali: laminaatti
Makuuhuoneiden määrä: 2
Varusteet: suihku, suihkuseinä, pesukoneliitäntä, allaskaappi, peili
Seinien pintamateriaali: muovi
Lattian pintamateriaali: muovi
Seinien pintamateriaali: muovi
Lattian pintamateriaali: muovi
Kellari tai kellarikomero
Vaatehuone: Tilava vaatehuone
Katto: Tasakatto
Katon pintamateriaali: Huopakate
Katon pintamateriaali: Huopakate
Taloyhtiö
Asunto Oy Ramsayntie, Loviisa
Huoneistokohtainen varasto, talopesula, väestönsuoja, urheiluvälinevarasto
Taloyhtiössä sauna
Oiva Isännöinti Porvoo: Väyrynen
Huoltoyhtiö
Porvoon Huoltomiehet
Porvoon Huoltomiehet
D2018
Ei rantaa
Asemakaava
Muut lisätiedot
Autopaikan voi varata taloyhtiöltä jonotuslistan mukaan.
Etelä, pohjoinen
Loviisan alueella:, ulkoilureitit lähellä, puisto lähellä, koirapuisto, kuntosali, urheiluhalli, jäähalli, uimaranta, jalkapallokenttä, urheilukenttä
Loviisan keskustan alueella:, ruokakauppa, päiväkoti, ala-aste, yläaste, lukio, posti, terveysasema, kirjasto
Bussipysäkki, sujuvat yhteydet omalla autolla








