Erillistalo, Mariankatu 25, Loviisa, Keskusta, Yhteensä 10 asuntoa, harrastetila, sauna ym. kahdessa rakennuksessa, 566,00 m², 340 000,00 €
Ainutlaatuinen sijoituskohde Loviisan ydinkeskustassa
Tarjolla kahden asuinrakennuksen kokonaisuus Loviisan keskustassa, historiallisen alakaupungin kupeessa. Kaikki kaupungin keskeiset palvelut ovat kävelyetäisyydellä, mikä tekee asunnoista houkuttelevia vuokralaismarkkinoilla.
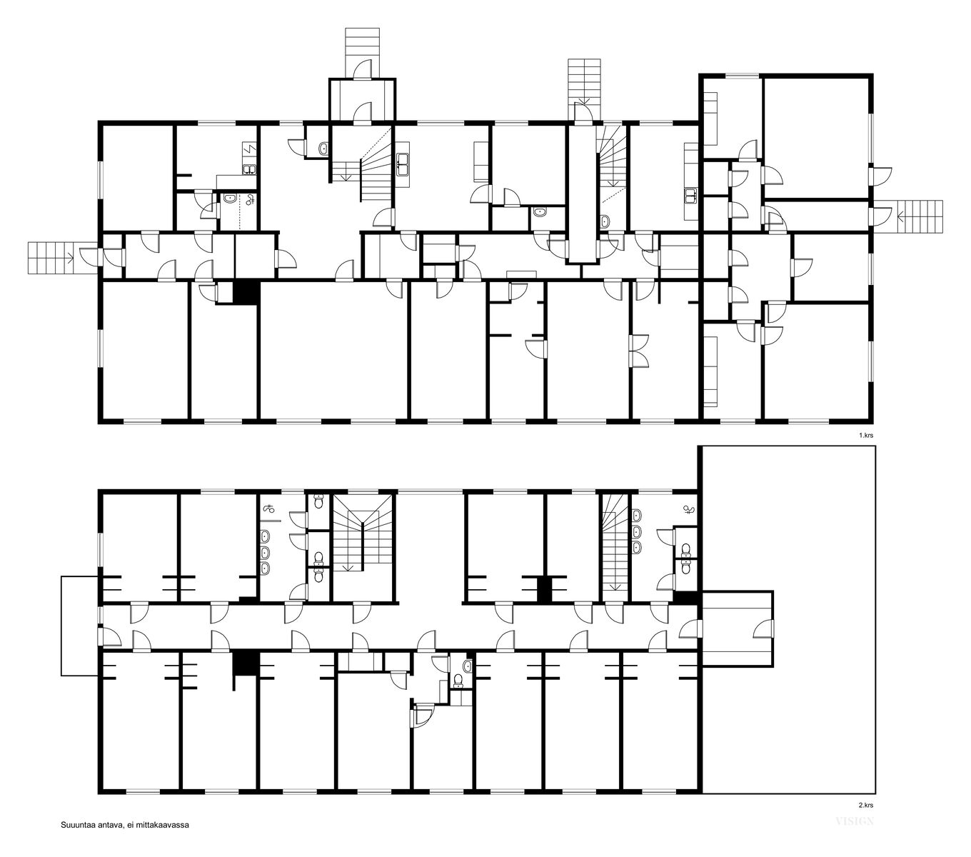
Kokonaisuus käsittää yhteensä 10 huoneistoa kahdessa rakennuksessa: vuonna 1950 valmistuneessa A-talossa ja vuonna 1926 rakennetussa B-talossa. Yhteistiloja ovat esimerkiksi harrastehuone ja sauna A-talon kellarissa.
Puurakenteiset vanhat asuinrakennukset sijaitsevat omalla, 2190 neliömetrin tontilla. Kiinteistö on liitetty kunnalliseen vesi- ja viemäriverkostoon sekä kaukolämpöön. Lämmitys toimii vesikiertoisella patterijärjestelmällä ja rakennuksissa on kaapelitelevisio- sekä internetyhteydet.
Huoneistojen kunto vaihtelee ja osa tiloista kaipaa tai vaatiikin saneerausta. Esimerkiksi A-talon yläkerta vanhoine asuntolahuoneineen on tällä hetkellä täysin käyttämätön ja hyödyntämättä, eikä siellä ole toimivaa vesi- ja viemäriputkistoa. Muutoin kiinteistöön on tehty kunnostustöitä vuosina 2014-2024, mm. putki-, sähkö- ja erilaisia pintaremontteja asuinhuoneistoihin.
Tervetuloa tutustumaan tähän keskustakiinteistöön ja sen tarjoamiin mahdollisuuksiin. 
Kohdetta myy
07900 Loviisahemma@lkvhemma.fi0400 158 919
Esittely
Perustiedot
Mariankatu 25
07900 Loviisa
Hinta ja kustannukset
Laskettu velattomasta myyntihinnasta.
Lisätiedot
A-talon kellarissa taloyhtiön sauna.
2014-2015 B-talon vesi- ja sähköjohdot uusittu
2015 WC-tila laajennettu, suihkun asennus
2016 huoneiston B9 pintojen uusiminen, huoneistossa A4 pientä saneerausta
2017 huoneiston A1 kylpyhuoneen saneeraus, huoneiston A5 putkisaneeraus, uusi lattia, valokuitu
2021 huoneiston B10 pintamaalaus, uusi tuuletin keittiöön, uusi ovi, huoneiston B11 keittiö uusittu, A-talon alakerrokseen uudet ovet ja ikkunat, B-talon päätyyn uusi ovi
2022 käyttöveden ja lämmityksen venttiilimoottorit vaihdettu
2023 huoneiston A5 keittiön kaikki pinnat uusittu yläkerran putkirikon vuoksi
2024 lämpöjohtopumppu uusittu
Lämmönjakotapa: vesikiertoinen patterilämmitys
Asunnon tilat ja materiaalit
Katon pintamateriaali: Peltikate
































