Kerrostalo, Nordenskiöldintie 7, Loviisa, Määrlahti, 3h + k, 76,50 m², 54 000,00 €
Toisen asuinkerroksen siistikuntoinen läpitalon kolmio. Tilavat huoneet sekä lasitettu parveke ilta-auringon suuntaan lisäämässä asuinmukavuutta. Kuningattarenrannan lähikauppa sekä merenranta leikkipuistoineen ja lenkkipolkuineen vieressä, keskustan palvelut kävelymatkan päässä. 
Kohdetta myy
LKV Leena Lindroos OyY-tunnus: 2606259-2Aleksanterinkatu 8
07900 Loviisahemma@lkvhemma.fi0400 158 919
07900 Loviisahemma@lkvhemma.fi0400 158 919
Esittely
Kohteen seuraavaa esittelyajankohtaa ei ole tiedossa
Perustiedot
45084402
45084402
Loviisa, Määrlahti
Nordenskiöldintie 7
07940 Loviisa
Nordenskiöldintie 7
07940 Loviisa
Kerrostalo
Ei
Omistusasunto
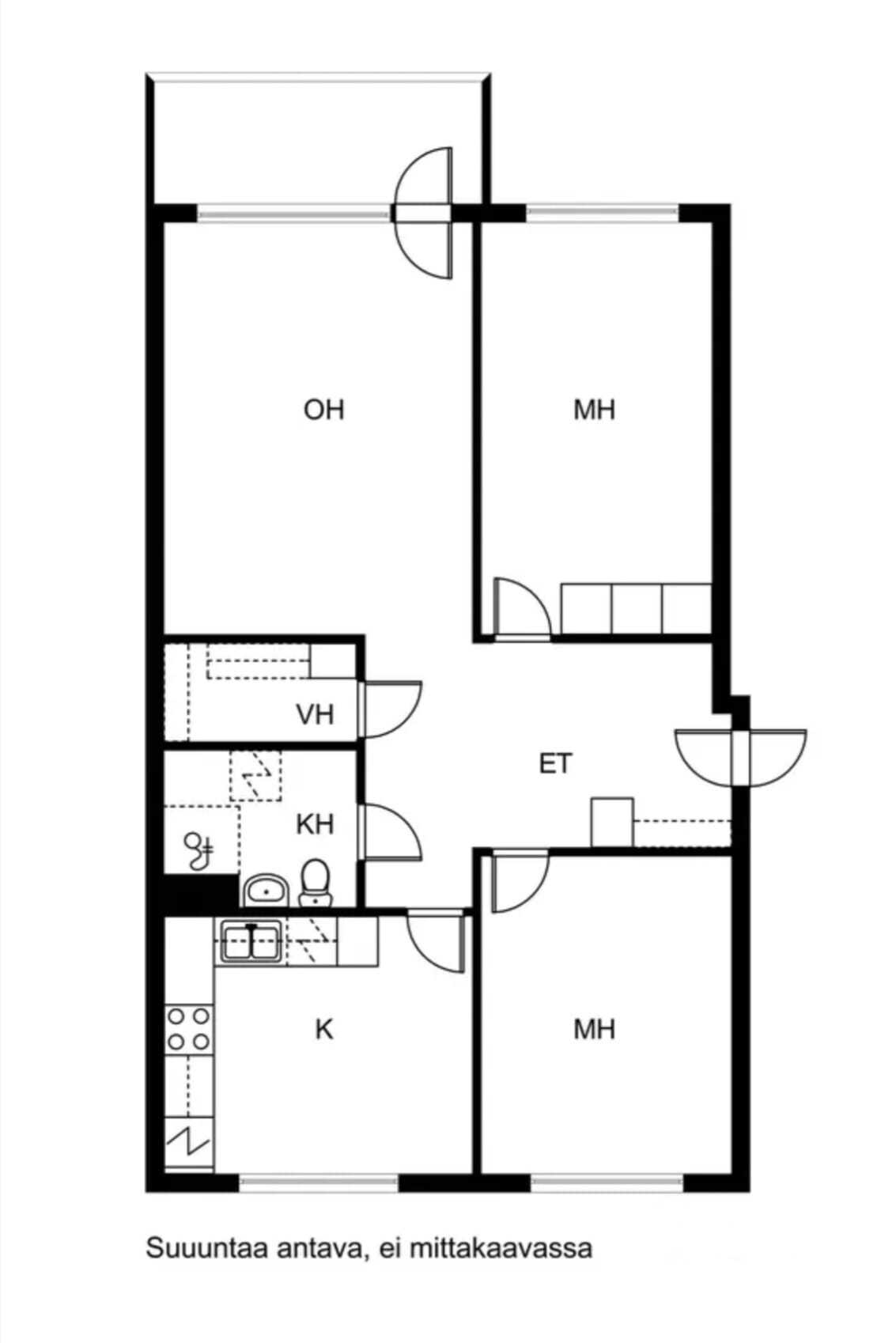
3h + k
3
76,50 m²
76,50 m²
Yhtiöjärjestyksen mukainen, Isännöitsijäntodistuksen mukainen
2/3
3
1978
1978
Hinta ja kustannukset
54 000,00 €
49 500,00 €
4 500,00 €
705,88 € / m²
Laskettu velattomasta myyntihinnasta.
Laskettu velattomasta myyntihinnasta.
365,67 € / kk
Hoitovastike 298,35 € / kk
Rahoitusvastike 67,32 € / kk
Hoitovastike 298,35 € / kk
Rahoitusvastike 67,32 € / kk
25,00 € / kk / hlö
Autopaikkamaksu: 75 €/vuosi
Saunamaksu: 15 €/kk
Saunamaksu: 15 €/kk
Ekomaksu 2,33 € / kk
Lisätiedot
Lasitettu
Ilmansuunta: länsi
Ilmansuunta: länsi
Ei
Ei
Tyydyttävä
Kaukolämpö
Antenni-TV
Asunnon tilat ja materiaalit
Pääasiallinen rakennusmateriaali: Betoni
Varusteet: jääviileäkaappi, keraaminen liesi, astianpesukone
Seinien pintamateriaali: kaakeli, maalattu
Lattian pintamateriaali: laminaatti
Seinien pintamateriaali: kaakeli, maalattu
Lattian pintamateriaali: laminaatti
Seinien pintamateriaali: tapetti
Lattian pintamateriaali: laminaatti
Lattian pintamateriaali: laminaatti
Seinien pintamateriaali: tapetti
Lattian pintamateriaali: laminaatti
Makuuhuoneiden määrä: 2
Lattian pintamateriaali: laminaatti
Makuuhuoneiden määrä: 2
Varusteet: pesukoneliitäntä, suihku, peili
Seinien pintamateriaali: kaakeli, tapetti
Seinien pintamateriaali: kaakeli, tapetti
Katto: Muu
Katon pintamateriaali: Muu
Katon pintamateriaali: Muu
Taloyhtiö
As Oy Nordenskiöldintie 7
Kellarikomero, urheiluvälinevarasto
Urheiluvälinevarasto: Kylmähuone muutetaan pyörävarastoksi
Taloyhtiössä on: sauna
Urheiluvälinevarasto: Kylmähuone muutetaan pyörävarastoksi
Taloyhtiössä on: sauna
Taloyhtiössä sauna
27
1999-2000 Uloimmat ikkunat vaihdettu (alumiini)
2010 Kaukolämpöön liittyminen
2011 Jätekatos rakentaminen
2015 Sauna löylyhuoneen uusiminen
2017 Julkisivu maalaus
2020 Parvekeikkunat uusittu
2022 Vesikatto uusiminen
2022 IV-kanavat puhdistus
2022 Huoneistojen ulko-ovien lukoston uusiminen
2023 Kiinteistön ulko-oviin koodilukot
2025 Palovaroittimien hankinta ja ylläpito
2010 Kaukolämpöön liittyminen
2011 Jätekatos rakentaminen
2015 Sauna löylyhuoneen uusiminen
2017 Julkisivu maalaus
2020 Parvekeikkunat uusittu
2022 Vesikatto uusiminen
2022 IV-kanavat puhdistus
2022 Huoneistojen ulko-ovien lukoston uusiminen
2023 Kiinteistön ulko-oviin koodilukot
2025 Palovaroittimien hankinta ja ylläpito
2026 LVI-kuntotutkimus
2032 Vesikaton takuutarkastus
2032 Vesikaton takuutarkastus
Isännöintipalvelu Isarvo Oy Loviisa / Katja Paajanen / katja.paajanen@isarvo.fi
Huoltoyhtiö
ISS Palvelut Oy
ISS Palvelut Oy
D2018
2 967,00 m²
Oma
Ei rantaa
Asemakaava
Muut lisätiedot
Sähköpistokepaikkoja (kpl): 16








