Rivitalo, Eteläinen Rauhalantie 21, Loviisa, 2h + k + s + kph + wc + vh, 65,50 m², 65 000,00 €
Rauhalassa tilava, saunallinen rivitalokaksio, jolla on oma suojaisa etelänpuoleinen piha. Omalla piha-alueella on myös huoneistolle kuuluva ulkovarasto sekä pihaportti. Tämä koti sijaitsee vehreällä pientaloalueella, lähellä monia harrastusmahdollisuuksia kuten jää- ja keilahallia, lähikauppaa sekä luontoa, mutta samalla kaupungin ydinkeskustaa. Rivitalokaksioita tulee suhteellisen harvoin myyntimarkkinoille, joten oiva vaihtoehto myös sijoittajalle. 
Kohdetta myy
LKV Leena Lindroos OyY-tunnus: 2606259-2Aleksanterinkatu 8
07900 Loviisahemma@lkvhemma.fi0400 158 919
07900 Loviisahemma@lkvhemma.fi0400 158 919
Esittely
Kohteen seuraavaa esittelyajankohtaa ei ole tiedossa
Perustiedot
36124784
36124784
Eteläinen Rauhalantie 21
07920 Loviisa
07920 Loviisa
Rivitalo
Ei
Omistusasunto
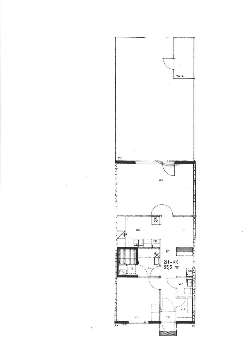
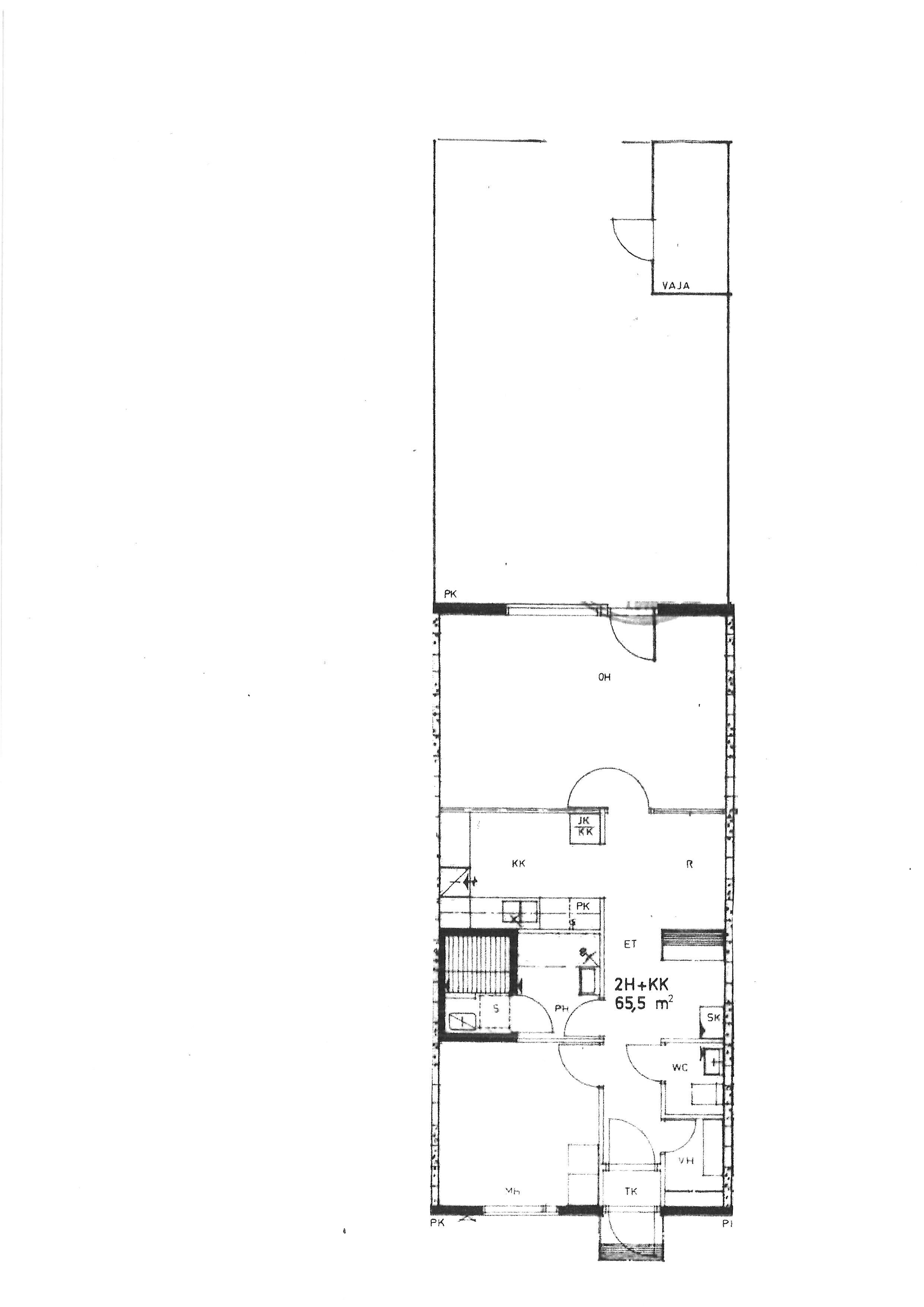
2h + k + s + kph + wc + vh
2
65,50 m²
65,50 m²
Yhtiöjärjestyksen mukainen, Isännöitsijäntodistuksen mukainen
Pinta-ala yhtiöjärjestyksen mukainen.
Pinta-ala yhtiöjärjestyksen mukainen.
1974
1974
Hinta ja kustannukset
65 000,00 €
56 915,00 €
8 085,00 €
992,37 € / m²
Laskettu velattomasta myyntihinnasta.
Laskettu velattomasta myyntihinnasta.
692,16 € / kk
Hoitovastike 374,79 € / kk
Rahoitusvastike 317,37 € / kk
Hoitovastike 374,79 € / kk
Rahoitusvastike 317,37 € / kk
19,00 € / kk / hlö
TV-maksu: 27.2€/kk
Autopaikkamaksu: 5 €/kk
Autopaikkamaksu: 5 €/kk
Käyttösähkö. Vesimaksu on ennakkoa; huoneistoissa omat vesimittarit.
Lisätiedot
Ei
Ei
Asunnossa on sauna
Varusteet: sähkökiuas
Seinien pintamateriaali: puu
Lattian pintamateriaali: laatta
Varusteet: sähkökiuas
Seinien pintamateriaali: puu
Lattian pintamateriaali: laatta
Asunnossa on oma piha
Etelän suuntaan, suojaisa piha.
Etelän suuntaan, suojaisa piha.
Ei
Tyydyttävä
Ei
Kaukolämpö
Lämmönjakotapa: vesikiertoinen patterilämmitys
Lämmönjakotapa: vesikiertoinen patterilämmitys
Painovoimainen
Kaapeli-TV
Asunnon tilat ja materiaalit
Pääasiallinen rakennusmateriaali: Puu
Pääasialliset rakennusmateriaalit puu ja tiili
Pääasialliset rakennusmateriaalit puu ja tiili
Varusteet: jääkaappi, sähköliesi
Seinien pintamateriaali: maalattu, kaakeli
Lattian pintamateriaali: muovi
Seinien pintamateriaali: maalattu, kaakeli
Lattian pintamateriaali: muovi
Seinien pintamateriaali: tapetti, maalattu
Lattian pintamateriaali: muovi
Lattian pintamateriaali: muovi
Seinien pintamateriaali: tapetti, maalattu
Lattian pintamateriaali: muovi
Makuuhuoneiden määrä: 1
Lattian pintamateriaali: muovi
Makuuhuoneiden määrä: 1
Varusteet: suihku, pesukoneliitäntä
Seinien pintamateriaali: kaakeli
Lattian pintamateriaali: laatta
Seinien pintamateriaali: kaakeli
Lattian pintamateriaali: laatta
Varusteet: lattiaan asennettu WC, peili, bidee
Seinien pintamateriaali: kaakeli
Lattian pintamateriaali: laatta
Seinien pintamateriaali: kaakeli
Lattian pintamateriaali: laatta
Ulkovarasto
Takapihalla
Takapihalla
Vaatehuone: Pieni vaatehuone
Katto: Harjakatto
Katon pintamateriaali: Peltikate
Uusittu v. 2007
Katon pintamateriaali: Peltikate
Uusittu v. 2007
Taloyhtiö
Asunto Oy Syysrauha
Huoneistokohtainen varasto
Taloyhtiössä sauna
11
Terassiovet uusittu 2002
Vesikatto uusittu 2007
Kaukolämpö 2008
Ikkunat uusittu 2009
Huoneistojen ulko-ovet uusittu 2010
Vesijohdot uusittu 2016
piha-aidat uusittu 2018
Pääviemäreiden kuvaus ja puhdistaminen, julkisivun osittainen huoltomaalaus 2021
Lämpöputkien osittainen korjaus ja uusiminen, Märkätilasaneeraus (2 huoneiston kph+s) 2024
Märkätilasaneeraus (3 huoneiston kph+s) 2025
Vesikatto uusittu 2007
Kaukolämpö 2008
Ikkunat uusittu 2009
Huoneistojen ulko-ovet uusittu 2010
Vesijohdot uusittu 2016
piha-aidat uusittu 2018
Pääviemäreiden kuvaus ja puhdistaminen, julkisivun osittainen huoltomaalaus 2021
Lämpöputkien osittainen korjaus ja uusiminen, Märkätilasaneeraus (2 huoneiston kph+s) 2024
Märkätilasaneeraus (3 huoneiston kph+s) 2025
2025 palovaroittimien hankinta ja ylläpito, väliaitojen huolto/kyllästäminen
2028 patteriston putkiston peruskorjaus
2028 patteriston putkiston peruskorjaus
Isännöintipalvelu Isarvo Oy Loviisa
Katja Paajanen / 044-7511707
Katja Paajanen / 044-7511707
Huoltoyhtiö
E2018
3 486,00 m²
Vuokratontti
31.12.2032
Loviisan kaupunki
Ei rantaa
Asemakaava
Urheiluvälinevarasto
Muut lisätiedot
Ulkoautopaikat sähköpistokkeella: 8
Asunnon käytössä olevat autopaikat: ulkoautopaikka sähköpistokkeella
Autopaikkoja pihalla.
Asunnon käytössä olevat autopaikat: ulkoautopaikka sähköpistokkeella
Autopaikkoja pihalla.
Taloyhtiön piha-alueelle ja omalle takapihalle.
Ruokakauppa ja päiväkoti lähellä. Runsaat harrastusmahdollisuudet lähellä.
Linja-auto ja henkilöauto.
Sälekaihtimet, Varasto, Vaatehuone, valokuitu








