Omakotitalo, Vyökatu 4, Loviisa, 4h + k + wc + s +khh + at, 134,00 m², 69 000,00 €
Arkkitehdin suunnittelema omakotitalo Garnisonin vanhalla ja arvostetulla pientaloalueella. Tämä jykevä Siporex-kivitalo kaipaa täydellistä saneerausta, mutta sijainti on todella hyvä ja tontti suo mahdollisuuksia niin oleskeluun, hyötypuutarhan pitoon kuin leikkeihinkin. Päärakennuksessa on iso olohuone, ruokailuhuone/makuuhuone, keittiö ja kaksi muuta makuuhuonetta sekä sauna, erillinen wc ja varastotilaa. Päärakennuksen yhteydessä on lisäksi kaksi autotallia. Ydinkeskustaan on matkaa vain jokunen sata metriä, samaten Kuningattarenrantaan lähikauppoineen ja mahdollisuuksiin nauttia lähiluonnosta. 
Kohdetta myy
LKV Leena Lindroos OyY-tunnus: 2606259-2Aleksanterinkatu 8
07900 Loviisahemma@lkvhemma.fi+358 400 126 605
07900 Loviisahemma@lkvhemma.fi+358 400 126 605
Esittely
Kohteen seuraavaa esittelyajankohtaa ei ole tiedossa
Perustiedot
32530905
32530905
Vyökatu 4
07900 Loviisa
07900 Loviisa
Omakotitalo
Ei
Omistusasunto
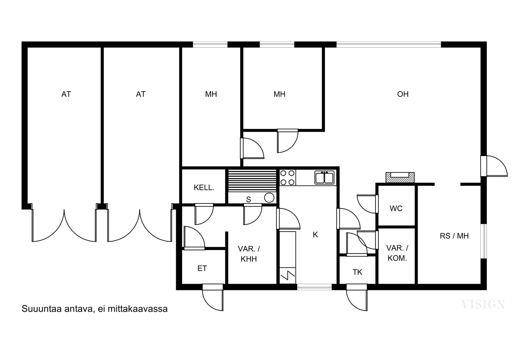
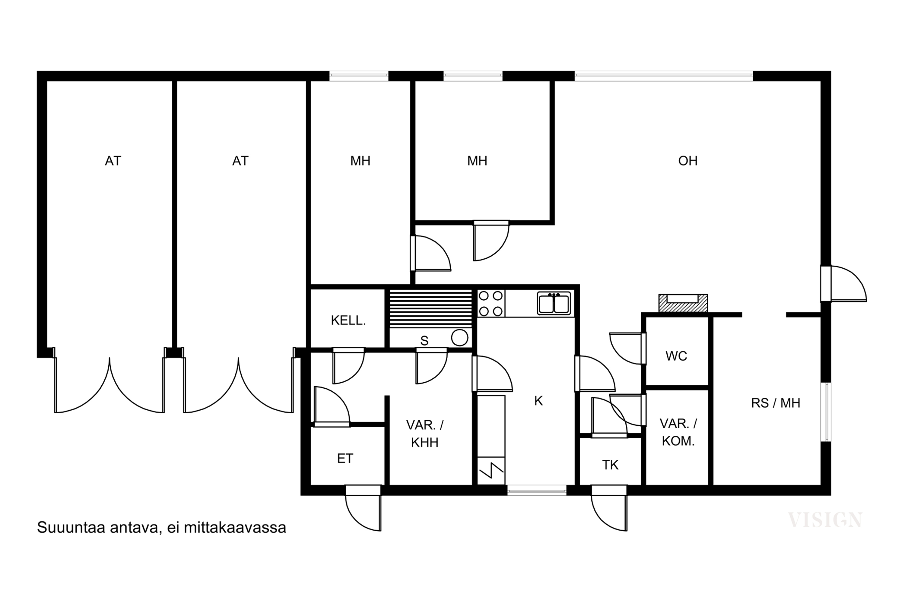
4h + k + wc + s +khh + at
5
134,00 m²
30,00 m²
164,00 m²
Muut tilat = kahden auton autotalli
1956
1956
Hinta ja kustannukset
69 000,00 €
69 000,00 €
514,93 € / m²
Laskettu velattomasta myyntihinnasta.
Laskettu velattomasta myyntihinnasta.
208,76 € / v
Vesi ja viemäri, sähkö, jätehuolto, vakuutukset, nuohous
Lisätiedot
Ei
Asunnossa on sauna
Varusteet: sähkökiuas
Seinien pintamateriaali: puu
Lattian pintamateriaali: laatta
Varusteet: sähkökiuas
Seinien pintamateriaali: puu
Lattian pintamateriaali: laatta
Istutukset, nurmikko, marjapensaat
Ei
Avotakka
Välttävä
1990-luvulla keittiön kaapistot uusittu, tehty sauna.
Ei lain edellyttämää energiatodistusta
Sähkölämmitys, puulämmitys
Lämmönjakotapa: sähköpatterilämmitys
Lämmönjakotapa: sähköpatterilämmitys
Kunnan vesijohto
Kunnan
Painovoimainen
Antenni-TV
Asunnon tilat ja materiaalit
Pääasiallinen rakennusmateriaali: Kivi
Pintamateriaalit: Käytännössä kaikki pinnat alkuperäisiä.
Pintamateriaalit: Käytännössä kaikki pinnat alkuperäisiä.
Varusteet: jääkaappi, sähköliesi, puuhella
Seinien pintamateriaali: kaakeli, maalattu
Lattian pintamateriaali: lauta
Seinien pintamateriaali: kaakeli, maalattu
Lattian pintamateriaali: lauta
Olohuoneessa avotakka
Seinien pintamateriaali: betoni, maalattu
Lattian pintamateriaali: lauta
Seinien pintamateriaali: betoni, maalattu
Lattian pintamateriaali: lauta
Kaksi varsinaista makuuhuonetta, kolmatta käytetty olohuoneen viereisenä ruokasalina.
Seinien pintamateriaali: betoni, maalattu
Lattian pintamateriaali: lauta
Makuuhuoneiden määrä: 3
Seinien pintamateriaali: betoni, maalattu
Lattian pintamateriaali: lauta
Makuuhuoneiden määrä: 3
Suihku 1990+-luvulla tehdyssä sisäsaunassa.
Varusteet: suihku
Seinien pintamateriaali: puu
Lattian pintamateriaali: laatta
Varusteet: suihku
Seinien pintamateriaali: puu
Lattian pintamateriaali: laatta
Lavuaari
Varusteet: lattiaan asennettu WC, peili
Seinien pintamateriaali: betoni, maalattu
Lattian pintamateriaali: laatta
Varusteet: lattiaan asennettu WC, peili
Seinien pintamateriaali: betoni, maalattu
Lattian pintamateriaali: laatta
Tilava eteinen pääsisäänkäynnin luona.
Keittiön ja saunan vieressä avotila.
Varusteet: pesukoneliitäntä
Seinien pintamateriaali: betoni, maalattu
Lattian pintamateriaali: lauta
Varusteet: pesukoneliitäntä
Seinien pintamateriaali: betoni, maalattu
Lattian pintamateriaali: lauta
Kylmäkellari
Katto: Harjakatto
Katon pintamateriaali: Kuitusementtikate
Katon pintamateriaali: Kuitusementtikate
Asunnon tontti
434-10-142-823
1 058,00 m²
Tasamaa
Oma
Ei rantaa
Asemakaava
Kyllä
Muut lisätiedot
Ulkoilureitit lähellä, puisto lähellä
Kaikki keskustan palvelut n. 600 m.
Oma auto
Sähköliittymä, vesiliittymä, viemäriliittymä













