Kerrostalo, Ramsayntie 4, Loviisa, Määrlahti, 2h, k, kph, vh, p, 59,00 m², 560,00 €/kk
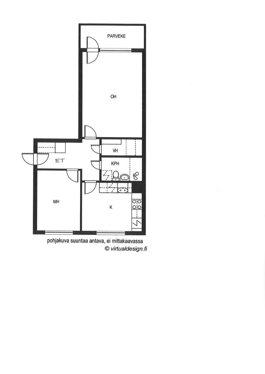
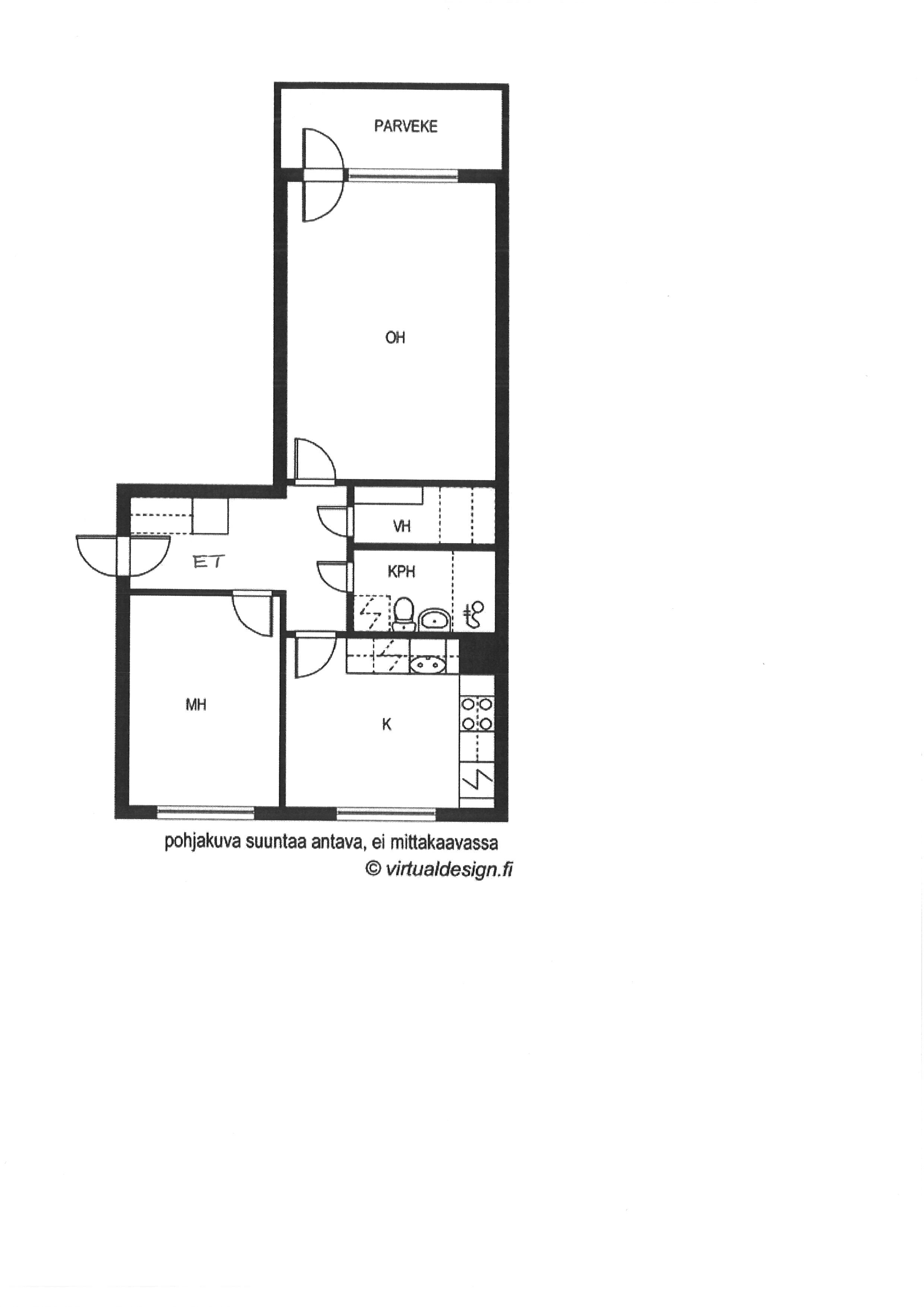
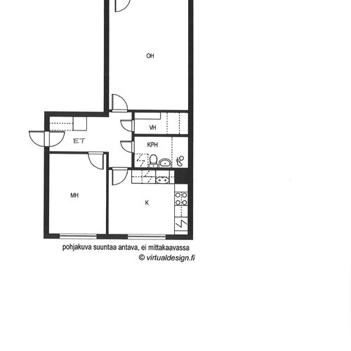
Siisti kaksio vuokrattavana kerrostalon ensimmäisessä kerroksessa. Huoneistossa laminaattilattiat ja pääosin maalatut seinäpinnat. Olohuoneesta käynti lasitetulle parvekkeelle, jolta näkymät Loviisanlahdelle kaupungin keskustaan päin. Keittiössä runsaasti kaappitilaa ja paikka kunnon ruokapöydälle. Valoisa läpitalon huoneisto. Läheisyydessä uusi K-market, päiväkoti ja Kuningattarenrannan kauniit ulkoilualueet. Voimme tehdä myös lyhyemmän toistaiseksi voimassa olevan vuokrasopimuksen. Lisätiedot ja näytöt kauttamme: 0400 – 158 919 Lkv Hemma. 
Kohdetta välittää
LKV Leena Lindroos OyY-tunnus: 2606259-2Aleksanterinkatu 8
07900 Loviisahemma@lkvhemma.fi0400 158 919
07900 Loviisahemma@lkvhemma.fi0400 158 919
Esittely
Kohteen seuraavaa esittelyajankohtaa ei ole tiedossa
Perustiedot
60516448
60516448
Loviisa, Määrlahti
Ramsayntie 4
07940 Loviisa
Ramsayntie 4
07940 Loviisa
Kerrostalo
Ei
Vuokra
2h, k, kph, vh, p
2
59,00 m²
59,00 m²
Yhtiöjärjestyksen mukainen
1/3
1976
1976
Ei
Hinta ja kustannukset
560,00 € / kk
Toistaiseksi voimassa oleva
1 120,00 €
Rahana, toimitettava viimeistään vuokrasopimuksen alkamispäivänä, kuitenkin aina ennen avainten luovutusta.
Rahana, toimitettava viimeistään vuokrasopimuksen alkamispäivänä, kuitenkin aina ennen avainten luovutusta.
Ei
Ei
20,00 € / kk / hlö
Saunamaksu: 12 €/kk
Autopaikkamaksu: 7 €/kk
Talopesulamaksu: 2.52€/kerta
Autopaikkamaksu: 7 €/kk
Talopesulamaksu: 2.52€/kerta
Lisätiedot
Ei
Lasitettu
Ilmansuunta: länsi
Ilmansuunta: länsi
Ei
Ei
Tyydyttävä
Kaukolämpö
Lämmönjakotapa: vesikiertoinen patterilämmitys
Kaukolämpö vesikiertoisilla pattereilla.
Lämmönjakotapa: vesikiertoinen patterilämmitys
Kaukolämpö vesikiertoisilla pattereilla.
Koneellinen poisto
Antenni-TV
Taloyhtiössä ei ole laajakaistaa tai taloyhtiönettiä.
Asunnon tilat ja materiaalit
Pääasiallinen rakennusmateriaali: Betoni
Varusteet: jääkaappipakastin, sähköliesi
Seinien pintamateriaali: maalattu
Lattian pintamateriaali: laminaatti
Seinien pintamateriaali: maalattu
Lattian pintamateriaali: laminaatti
Seinien pintamateriaali: maalattu
Lattian pintamateriaali: laminaatti
Lattian pintamateriaali: laminaatti
Seinien pintamateriaali: maalattu
Lattian pintamateriaali: laminaatti
Makuuhuoneiden määrä: 1
Lattian pintamateriaali: laminaatti
Makuuhuoneiden määrä: 1
Varusteet: suihku, suihkuseinä, pesukoneliitäntä, peilikaappi
Seinien pintamateriaali: kaakeli
Lattian pintamateriaali: laatta
Seinien pintamateriaali: kaakeli
Lattian pintamateriaali: laatta
Kellari tai kellarikomero
Vaatehuone: Tilava vaatehuone.
Katto: Tasakatto
Katon pintamateriaali: Huopakate
Katon pintamateriaali: Huopakate
Taloyhtiö
Bostads Ab Mörsaren Asunto Oy
Huoneistokohtainen varasto, kuivaushuone, väestönsuoja, talopesula, mankelihuone, urheiluvälinevarasto
Taloyhtiössä sauna
Käyttövesiputkiremontti suunnitteilla vuonna 2026. Ei vielä yhtiökokouksen päätöstä
Kiinteistö Memo, Rasmus Rutanen: rasmus@kiinteistomemo.fi
Huoltoyhtiö
E2018
Ei rantaa
Asemakaava
Muut lisätiedot
Lämmitystolpallinen autopaikka on varattavissa taloyhtiöltä jonotuslistan mukaan.
Länsi, itä
Ruokakauppa ja päiväkoti noin 500 m päässä.
Bussipysäkki, sujuvat yhteydet omalla autolla
Naulakko, verhotangot









