Kerrostalo, Jokikatu 2, Loviisa, Keskusta, 3h + k + kph + p, 67,00 m², 68 000,00 €
Kolmio Loviisan ydinkeskustassa – kaikki palvelut kävelymatkan päässä
Tämä kahden makuuhuoneen kerrostalokoti tarjoaa erinomaisen sijainnin ja kaikki ydinkeskustan palvelut käden ulottuvilla. Sijainti sopii täydellisesti sekä perheille koulujen ja harrastusten löytyessä läheltä että eläkeläisille, jotka arvostavat vaivatonta asiointimatkaa ja elävää kaupunkiympäristöä.
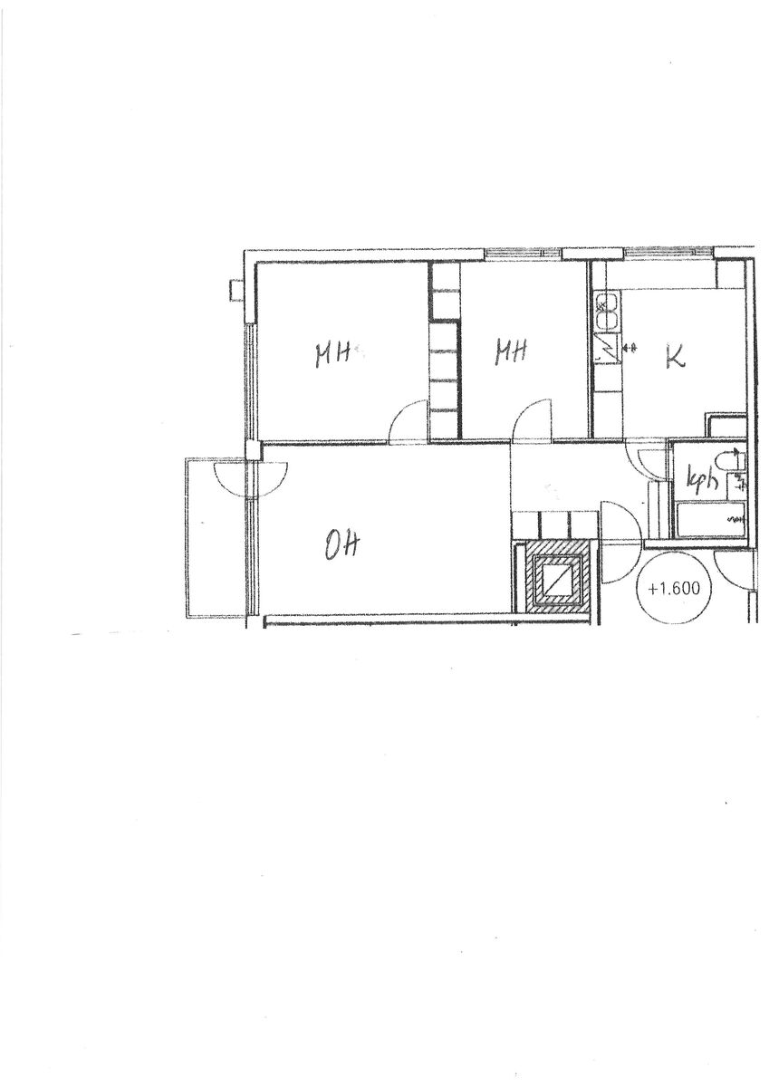
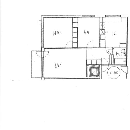
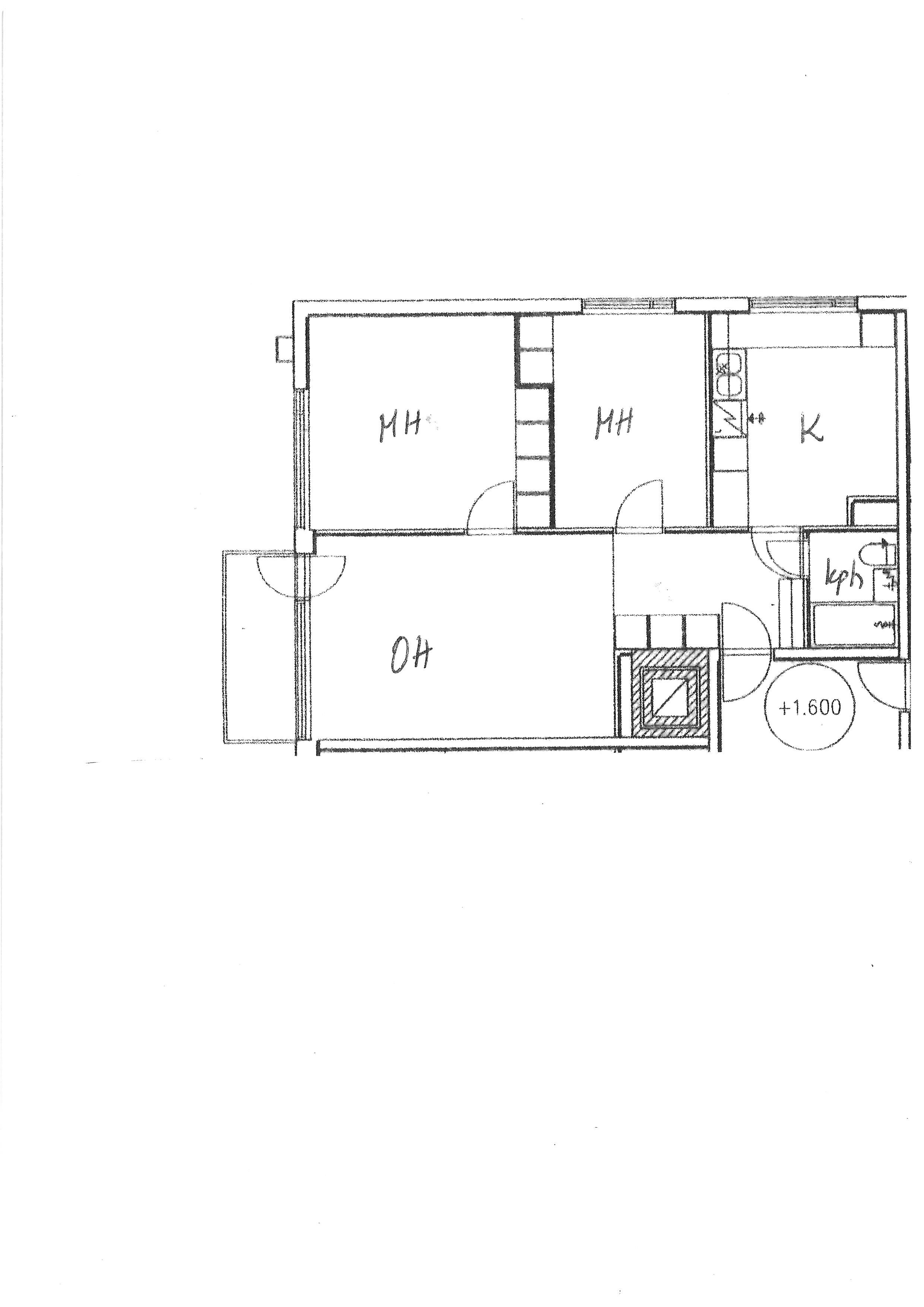
Kolmion pohjaratkaisu mahdollistaa neliöitään isommalta tuntuvat asumispuitteet. Asunnossa on kaksi makuuhuonetta, mikä tarjoaa joustavuutta perheen tarpeisiin tai esimerkiksi etätyöläiselle huoneen kotona työskentelyyn. Länsipuolen parveke avautuu rauhalliselle sivupihalle.
Kylpyhuone on remontoitu vuonna 2022. Muilta osin asunto on lähes alkuperäisessä kunnossa, joten suo täydelliset raamit saneerata juuri omannäköisensä koti.
Vuonna 1962 valmistuneessa talossa on ennätetty jo tehdä huomattavia peruskorjauksia, kuten kattopinnoituksen, lukituksen uusimisen ja viemärisaneerauksen. Taloyhtiössä on sauna yhteiskäyttöön sekä liikuntavälinevarasto.

Kohdetta myy
07900 Loviisahemma@lkvhemma.fi+358 400 126 605
Esittely
Perustiedot
Jokikatu 2
07900 Loviisa
Hinta ja kustannukset
Laskettu velattomasta myyntihinnasta.
Hoitovastike 348,40 € / kk
Saunamaksu: 10 €/hlö/kk
Lisätiedot
Ilmansuunta: länsi
Lämmönjakotapa: vesikiertoinen patterilämmitys
Asunnon tilat ja materiaalit
Seinien pintamateriaali: kaakeli, maalattu
Lattian pintamateriaali: muovi
Lattian pintamateriaali: muovi
Lattian pintamateriaali: muovi
Makuuhuoneiden määrä: 2
Seinien pintamateriaali: kaakeli
Lattian pintamateriaali: laatta
Katon pintamateriaali: Peltikate
Taloyhtiö
2006 liittyminen kaukolämpöön
2009 viemäreiden saneeraus
2010 pohjaviemäreiden saneeraus, käyttövesiputkien uusiminen
2012 kattomaalaus
2013 kaapeli-TV liittyminen
2014 lämmityksen säätö, huoneistojen ovien korjaus
2017 valokuitu liittyminen
2022 viemäreiden sukitus ja 4 huoneiston kph-saneeraus ja porraskäytävän saneeraus
2023 lukituksen uusiminen
2024 vesikaton pinnoitus/korjaus
2026 jätehuollon modernisointi, sähköasennusten saneerauksen suunnittelu
2027 sähköjen uusiminen
Aleksanterinkatu 5, Loviisa
katja.paajanen@isarvo.fi







