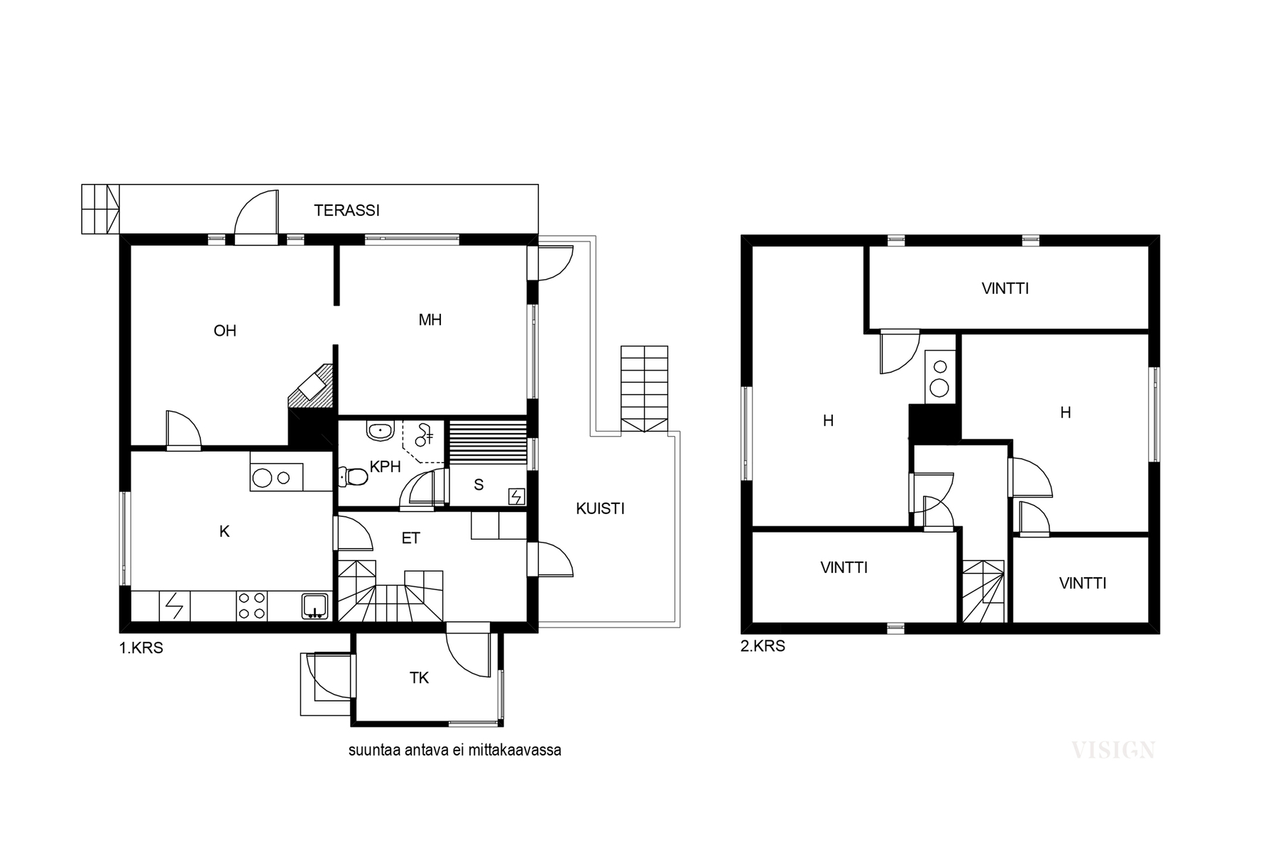
Omakotitalo, Mustanportintie 13, Loviisa, Vähä Ahvenkoski, 4h + k + kph + s, 93,00 m², 64 000,00 €
Rintamamiestalo Ruotsinpyhtään idyllisessä Ruukkimiljöössä n. viiden minuutin ajomatkan päässä Hki-Kotka -moottoritieltä niin Helsingin kuin Kotkankin suuntaan. Saneerausta ja päivitystä tämä koti kaipaa aika paljonkin, mutta sijainti päättyvän tien päässä, peltojen ympäröimällä tontilla on erinomainen omaa rauhaa ja avaria näkymiä kaipaavalle. Pihalla hyötypuutarha marjapensaineen ja hedelmäpuineen sekä isohko ulkorakennus. 
Kohdetta myy
LKV Leena Lindroos OyY-tunnus: 2606259-2Aleksanterinkatu 8
07900 Loviisahemma@lkvhemma.fi+358 400 126 605
07900 Loviisahemma@lkvhemma.fi+358 400 126 605
Esittely
Kohteen seuraavaa esittelyajankohtaa ei ole tiedossa
Perustiedot
1342326
20325026
Loviisa, Vähä Ahvenkoski
Mustanportintie 13
07970 Loviisa
Mustanportintie 13
07970 Loviisa
Omakotitalo
Ei
Omistusasunto
4h + k + kph + s
4
93,00 m²
19,00 m²
112,00 m²
2
1949
1949
Heti
Hinta ja kustannukset
64 000,00 €
64 000,00 €
688,17 € / m²
Laskettu velattomasta myyntihinnasta.
Laskettu velattomasta myyntihinnasta.
85,00 € / v
Ei ole
Lisätiedot
Asunnossa on sauna
Sähkökiuas
Sähkökiuas
Liesileivinuuni & porinmatti
Tyydyttävä
Ei tiedossa
Puu, sähkö
Lämmönjakotapa: sähköpatterilämmitys, uuni/takka
Lämmönjakotapa: sähköpatterilämmitys, uuni/takka
Kunnan
Kunnan
Painovoimainen
Antenni
Asunnon tilat ja materiaalit
Pääasiallinen rakennusmateriaali: Puu
Varusteet: liesituuletin
Seinien pintamateriaali: maalattu, muovi, muu
Lattian pintamateriaali: muovi
Keittiön tasot: laminaatti
Liesi: sähköliesi, puuliesi
Seinien pintamateriaali: maalattu, muovi, muu
Lattian pintamateriaali: muovi
Keittiön tasot: laminaatti
Liesi: sähköliesi, puuliesi
Seinien pintamateriaali: tapetti
Lattian pintamateriaali: muovi
Lattian pintamateriaali: muovi
Seinien pintamateriaali: tapetti
Lattian pintamateriaali: muovi
Makuuhuoneiden määrä: 3
Lattian pintamateriaali: muovi
Makuuhuoneiden määrä: 3
Varusteet: pesukoneliitäntä, wc-istuin, suihku
Seinien pintamateriaali: kaakeli, puu
Lattian pintamateriaali: laatta
Seinien pintamateriaali: kaakeli, puu
Lattian pintamateriaali: laatta
Katto: Harjakatto
Katon pintamateriaali: Peltikate
Katon kunto: Tyydyttävä, asennettu 1970-luvulla
Katon pintamateriaali: Peltikate
Katon kunto: Tyydyttävä, asennettu 1970-luvulla
Asunnon tontti
434-487-1-9
ORVOKKI
2 950,00 m²
Tasamaatontti
Oma
Ei rantaa
442,50 m²
Asemakaava
Vahvistettu 6.7.1988
Vahvistettu 6.7.1988
0,15
60 m² / rak.vuosi 1950
11 m² / rak.vuosi/laajennus 1970
11 m² / rak.vuosi/laajennus 1970
Kyllä
Muut lisätiedot
Koulut: Suomenkielinen ala-aste Ruukissa, ruotsinkielinen Tesjoella ja muut peruskoulutusasteet Loviisan keskustassa. Koulukuljetukset.
Päiväkodit: Päiväkoti Ruukissa
Palvelut: Kyläkauppa n. 1 km
Päiväkodit: Päiväkoti Ruukissa
Palvelut: Kyläkauppa n. 1 km
Oma auto, koulukuljetukset















